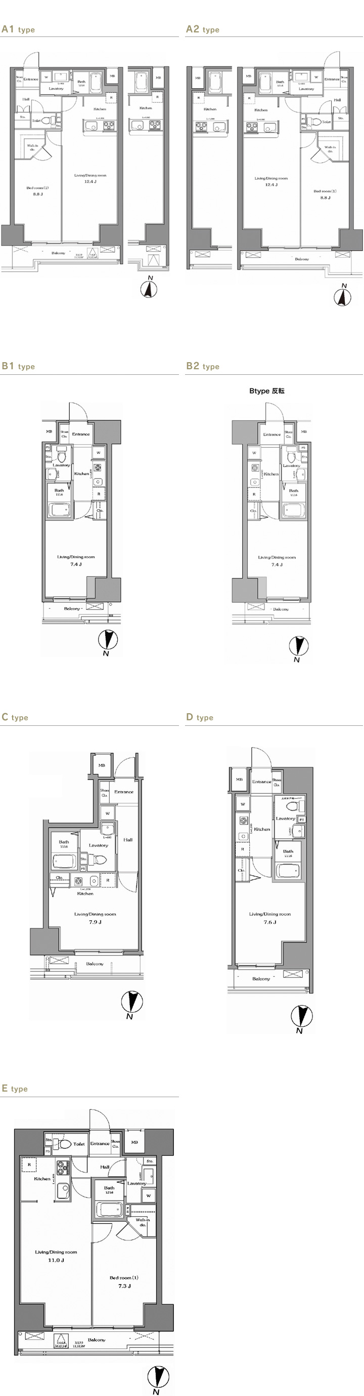
PLAN プラン

PAGETOP